Construction d'une Maison T4 à Cazères

Votre Maison neuve au sud de Toulouse : Confort, Performance et Sérénité

Vous rêvez de devenir propriétaire au sud de Toulouse ? Découvrez l’une de nos dernières réalisations : une maison T4 contemporaine située à Cazères, alliant modernité architecturale et intégration paysagère. En tant qu'entreprise générale du bâtiment, nous transformons chaque chantier en une expérience fluide et rassurante.

Un projet sur mesure et agréable

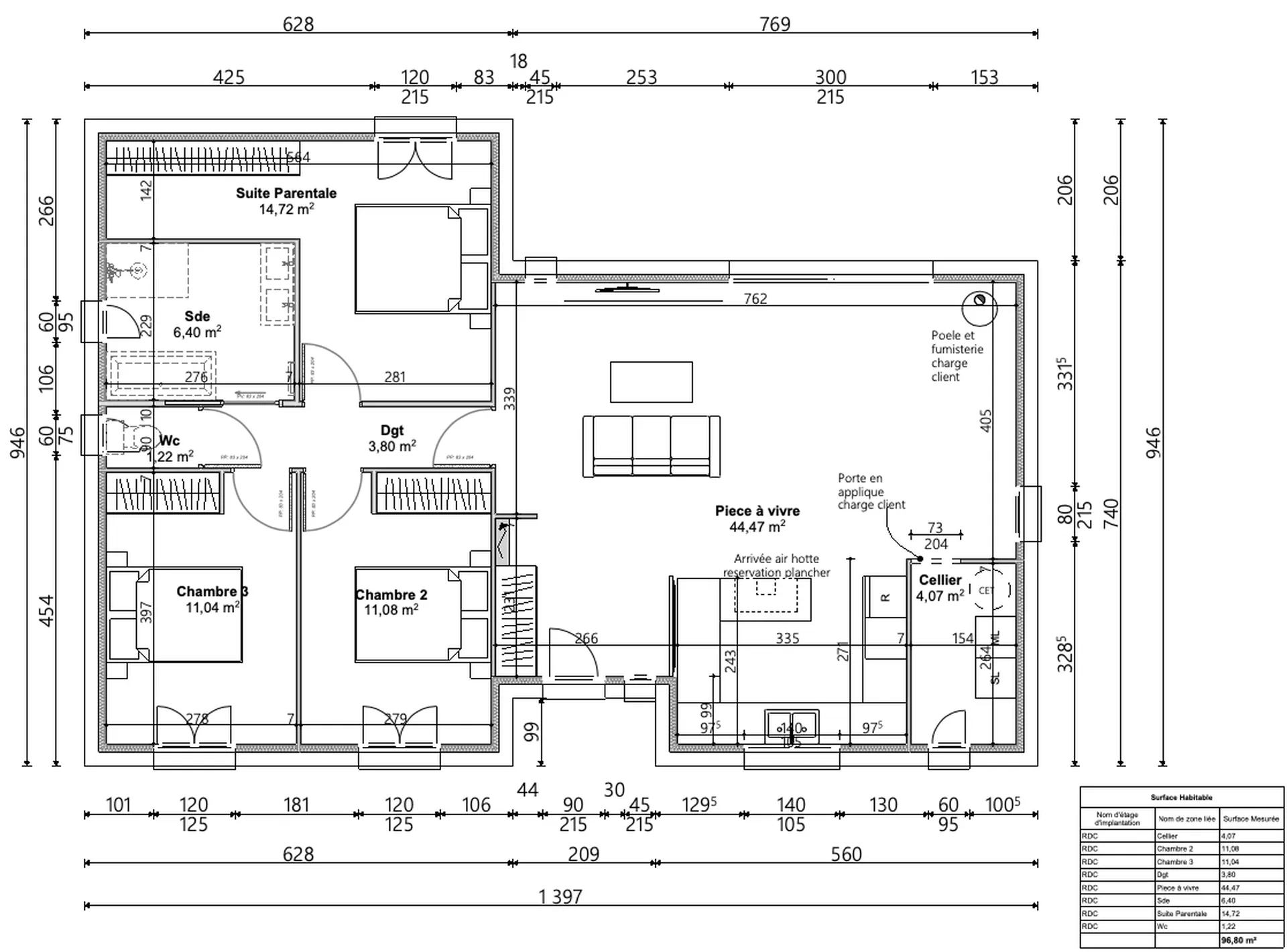
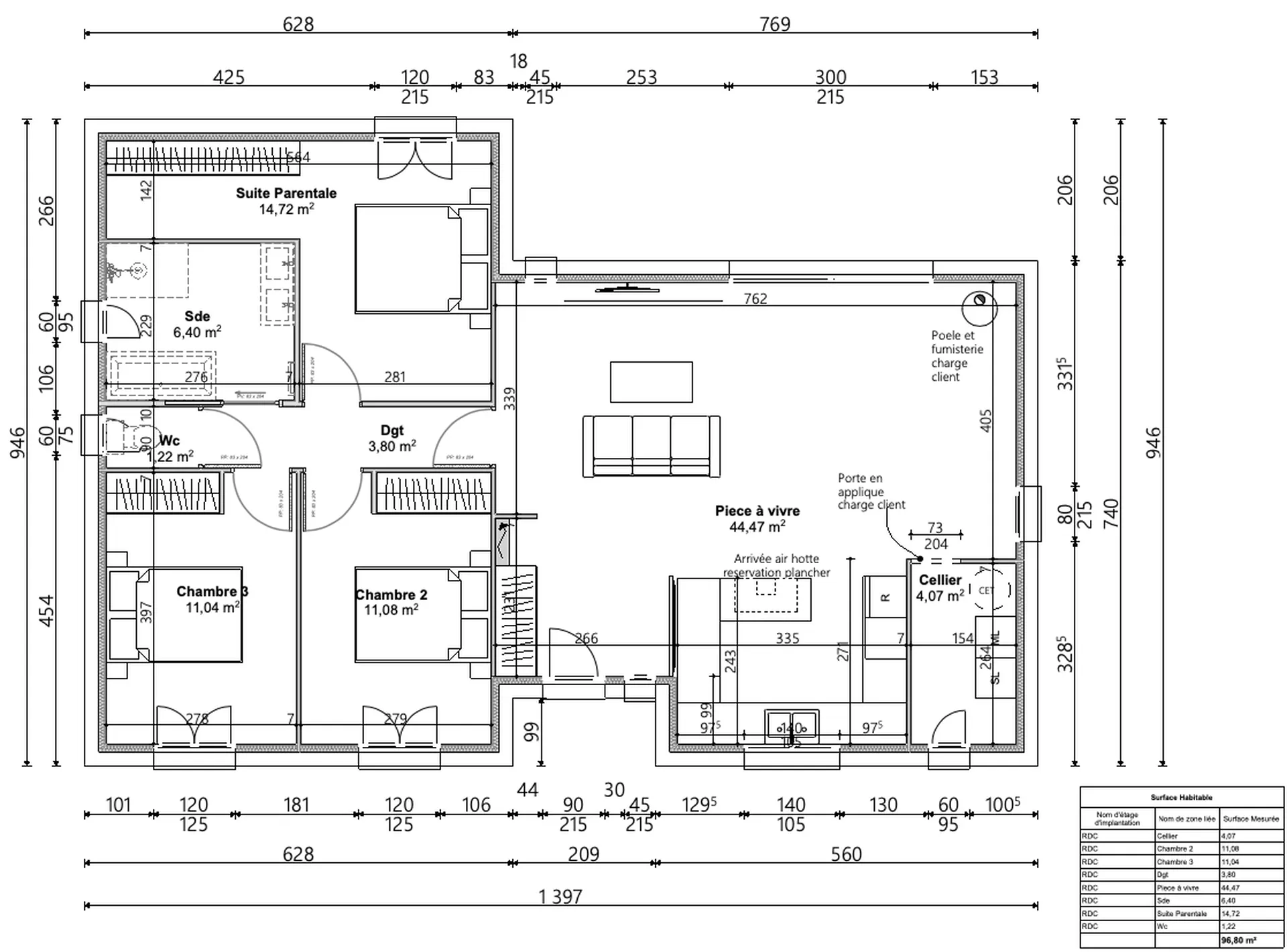
Parce que chaque famille est unique, nos projets sont 100 % personnalisables. De la disposition des pièces à l'optimisation des volumes de cette villa T4, nous adaptons chaque plan à votre mode de vie. Notre mission ? Rendre la construction simple pour vous. Nous gérons l'intégralité technique du dossier, vous permettant de vous concentrer sur l'essentiel : la décoration de votre futur foyer.

Performance énergétique et économies

Construire avec nous, c'est s'assurer d'une maison aux exigences thermiques élevées. Grâce à une isolation renforcée et des systèmes de chauffage innovants, nos constructions garantissent d'importantes économies d'énergie au quotidien. Ce confort thermique optimal vous offre une douceur de vivre en hiver comme en été, tout en valorisant votre patrimoine immobilier sur le long terme.

Votre constructeur en Haute-Garonne et Midi-Pyrénées

Si cette réalisation à Cazères illustre notre savoir-faire, notre expertise ne s'arrête pas là. Nous intervenons sur l’ensemble de la zone Midi-Pyrénées, ainsi qu'à Toulouse et ses alentours. Que votre terrain se situe dans le Volvestre, le Comminges ou la périphérie toulousaine, nous mettons notre rigueur et notre passion au service de votre futur habitat.

Prêt à lancer votre projet ? Contactez-nous pour une étude personnalisée de votre future maison individuelle, où que vous soyez dans la région.

Nous écrire
Les champs indiqués par un astérisque (*) sont obligatoires
Partager :
Une question ? Un devis ?
Inscrivez-vous à la newsletter